以前から薪ストーブのある生活を楽しみたかったO様。
キッチンリフォームを機に、設置を検討されました。
部屋を入ると、回遊できる使い勝手の良いアイランドキッチンが目に留まります。
キッチン横には視界に入らない大きいパントリーを設け、勝手口を新設しました。
家族が過ごしやすいことに、とことんこだわったLDKに念願の薪ストーブ。
炎の揺らやぎを見るだけで、あっという間に時間が経ちそうです。
体も心も芯まで暖かくなる薪ストーブと暮らす家が完成しました。
| お客様名 | O様邸 |
|---|---|
| 住所 | さぬき市 |
| 費用 | 1920万(2112万税込) |
| 工期 | 約2か月 |
| リフォーム箇所 | ■LDK改修 ・メトス薪ストーブ新設 ・L型→対面キッチンに交換、キャビネット設置 ・窓、勝手口ドア新設 ・パントリー新設 ・内装クロス、床重ね貼り ・外壁屋根補修・ウッドデッキ新設 |
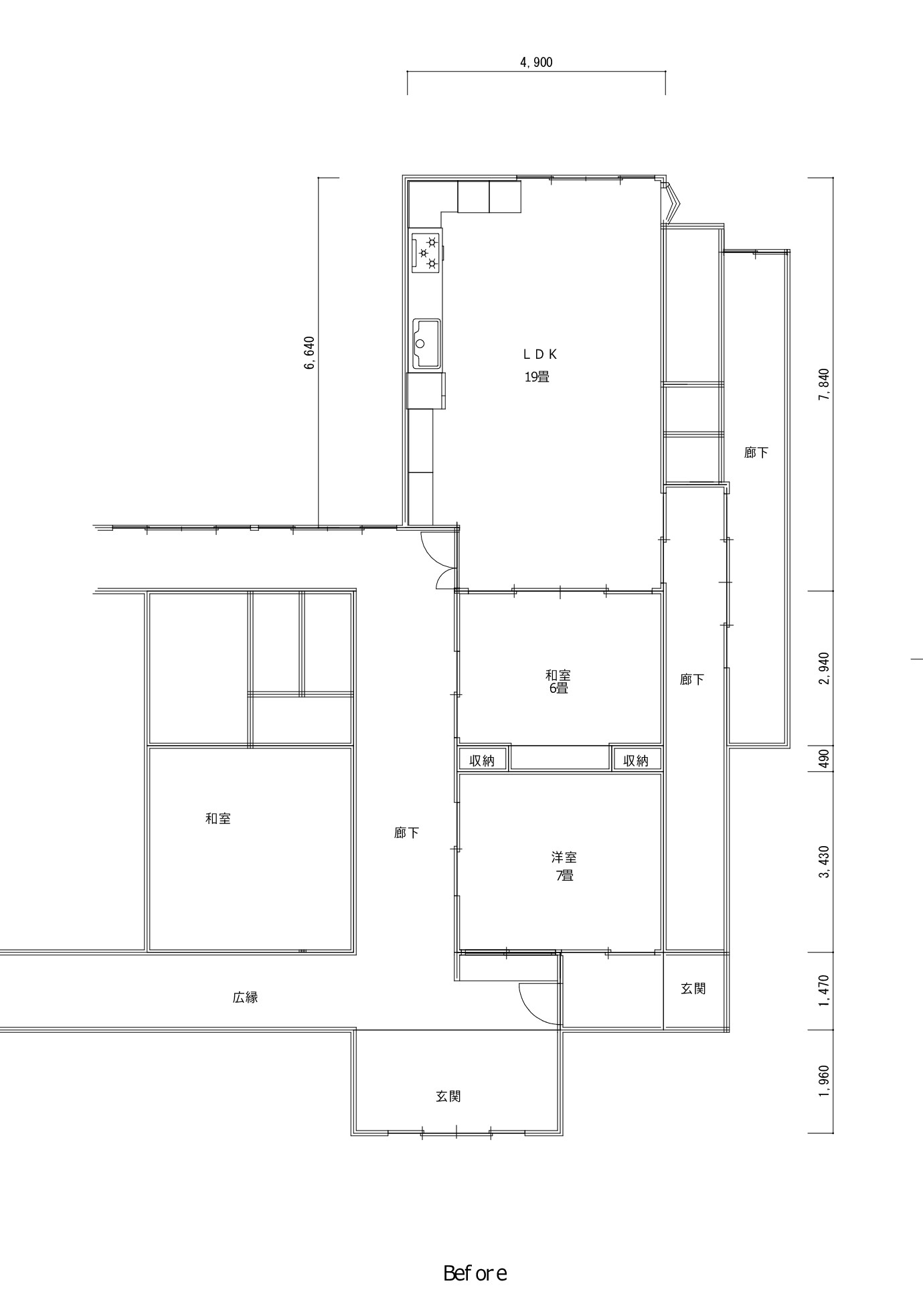
間取り
使用した材料
・キッチン/キャビネット パナソニック「L-CLASS」
・床材 三協アルミ「Sフロア」色:ブロックメイプル
使用した材料
・窓(引違) YKKAP「APW330」
使用した材料
・窓(引違) YKKAP「APW330」
使用した材料
・室内ドア三協アルミ リビング~洋室3枚戸74型
・床材 三協アルミ「Sフロア」色:ブロックメイプル
使用した材料
・勝手口 YKKAP「勝手口ドアリモ」 APW410
使用した材料
・薪ストーブ メトス ヨツールF400
使用した材料
・ウッドデッキ 三協アルミ「ヴィラウッド」
現場レポート
-
2024年04月24日
さぬき市 O様邸リノベーション工事(2)
解体工事が進んでいます。天井を落とすと立派な梁がでてきました。
-
2024年04月26日
さぬき市 O様邸リノベーション工事(3)
大工さんが柱を除けています。 真ん中の柱は重要な柱の為、今回は残すことにしました。
-
2024年04月27日
さぬき市 O様邸リノベーション工事(4)
天井下地をしています。
-
2024年04月30日
さぬき市 O様邸リノベーション工事(5)
畳を撤去した和室はダイニングから一続きにする為、床高を合わせるように下地をして断熱材を入れています。
-
2024年05月01日
さぬき市 O様邸リノベーション工事(6)
こちらはパントリーになるところです。もともと廊下でキッチンとは段差があったのですが同じ床高にしました。
-
2024年05月10日
さぬき市 O様邸リノベーション工事(7)
リビングの床張りが進んでいました。個性的な柄を選ばれていますがホワイトを基調としていて部屋が明るくなりますね。三協アルミSフロアクラフトオーク
-
2024年05月15日
さぬき市 O様邸リノベーション工事(8)
設備屋さんがキッチンの配管の為、承認図を見ながら位置出しをしています。
-
2024年05月17日
さぬき市 O様邸リノベーション工事(9)
ドア枠をつけていっています。
-
2024年05月21日
さぬき市 O様邸リノベーション工事(10)
腰窓を掃出し窓にかえました。中庭に出れるようになりました。中庭にはウッドデッキをする予定です。
-
2024年05月23日
さぬき市 O様邸リノベーション工事(11)
電気屋さんも配線工事を進めています。
-
2024年05月24日
さぬき市 O様邸リノベーション工事(12)
暖炉を設置する為、煙突工事をしました。
-
2024年05月24日
さぬき市 O様邸リノベーション工事(13)
内部ではボード貼が進んでいます。
-
2024年05月27日
さぬき市 O様邸リノベーション工事(14)
今日はキッチン施工日です。ボリュームのあるキッチンなので2日かかるかな。出来上がりが楽しみです。
-
2024年05月28日
さぬき市 O様邸リノベーション工事(15)
キッチンの施工はがんばって1日で終わらせてくださいました。養生していて全貌が見えませんが素敵なアイランドキッチンです。
-
2024年05月30日
さぬき市 O様邸リノベーション工事(16)
煙突工事をした後の屋根仕舞いをしています。
-
2024年06月03日
さぬき市 O様邸リノベーション工事(17)
内装工事に入りました。パテで下地をきれいにしています。
-
2024年06月04日
さぬき市 O様邸リノベーション工事(18)
白いクロスを貼ると部屋が明るくなりますね。
-
2024年06月05日
さぬき市 O様邸リノベーション工事(19)
暖炉を設置する壁にはタイルを貼りました。アクセントにもなってかっこいいですね!
-
2024年06月06日
さぬき市 O様邸リノベーション工事(20)
今日はリビングのアクセントクロスを貼っていました。綺麗なブルーが印象的な壁になりそうです。
-
2024年06月07日
さぬき市 O様邸リノベーション工事(21)
パントリーに可動棚を取付けています。
-
2024年06月10日
さぬき市 O様邸リノベーション工事(22)
照明器具をつけていました。暖炉横のブラケットがかわいいですね。
-
2024年06月12日
さぬき市 O様邸リノベーション工事(23)
養生を外しました。ボルドーのキッチンが登場です。
-
2024年06月12日
さぬき市 O様邸リノベーション工事(24)
エアコン取付工事をしています。
-
2024年06月14日
さぬき市 O様邸リノベーション工事(25)
薪ストーブを設置しました。雰囲気があってとても素敵ですね!
-
2024年06月19日
さぬき市 O様邸リノベーション工事(26)
美装も終わり建具の吊り込みをしています。
-
2024年06月19日
さぬき市 O様邸リノベーション工事(27)
ウッドデッキ工事が始まりました。
-
2024年06月20日
さぬき市 O様邸リノベーション工事(28)
ボルドーのキッチンが素敵ですね!背面に大型収納庫も設置され、使い勝手の良いキッチンになりました。
-
2024年06月25日
さぬき市 O様邸リノベーション工事(30)
テラス屋根を施工中です。下屋があり調節しながら慎重に施工しています。
-
2024年06月26日
さぬき市 O様邸リノベーション工事(31)
外構工事はお天気に左右されます。梅雨の晴れ間にデッキ工事を進めています。
-
2024年06月28日
さぬき市 O様邸リノベーション工事(32)
デッキが完成しました。危ないところはフェンスを取付ました。キッチンからも廊下からも出れて使い勝手良さそうですね。

























