所有されているビルの上階に住んでいたM様。
年を重ねるとともに、買い物帰りの階段上り下りがきつく、2階の店舗だったフロアを改修して住居にしたい
とご相談を受けました。
家は心安らぐ一番のくつろぎ空間です。
すべてを新しくするのではなく、昔にお店で使用していたのカウンターを残し、室内窓を設置しました。
インテリアのようなキッチンとゆとりある空間を設け、新しい住まいが完成しました。
| お客様名 | M様邸 |
|---|---|
| 住所 | 丸亀市 |
| 費用 | 1720万円(1892万円税込) |
| 工期 | 約2か月半 |
| リフォーム箇所 | 施工内容 所有ビルの2階店舗部分を居住用に全面リノベーション LDK・寝室・水まわり(シャワールーム別途あり)新設 小上がりのあるリビングを新設し、空間に段差と変化をプラス 既存のカウンターを活かしたデザイン提案 室内窓設置による明るく開放的な空間演出 キッチン入れ替え工事、給排水配管工事、内装仕上げ工事 バリアフリーを意識した動線計画 約2か月半の工期で完成 |
お客様のお悩み
長年住み慣れたビルの上階での生活でしたが、年を重ねるにつれ、買い物帰りの階段の上り下りが大変に。
2階の店舗スペースを活かして、同じ建物内で快適に暮らせるようにしたい――
そんな想いから、住居化リノベーションのご相談をいただきました。
アトリエ住まいるからのご提案
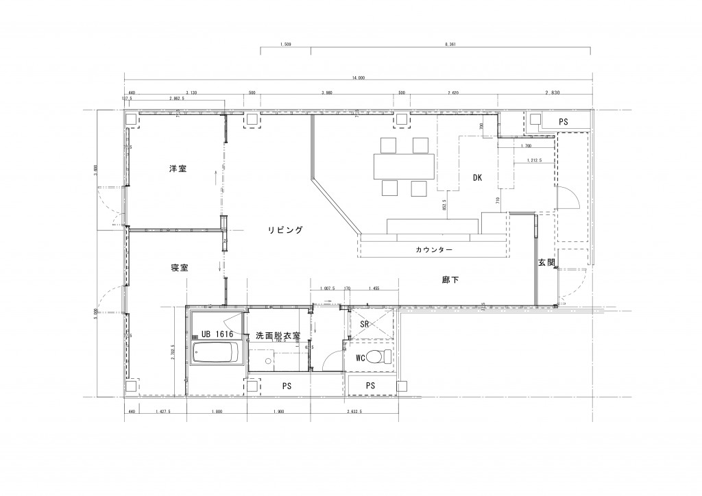
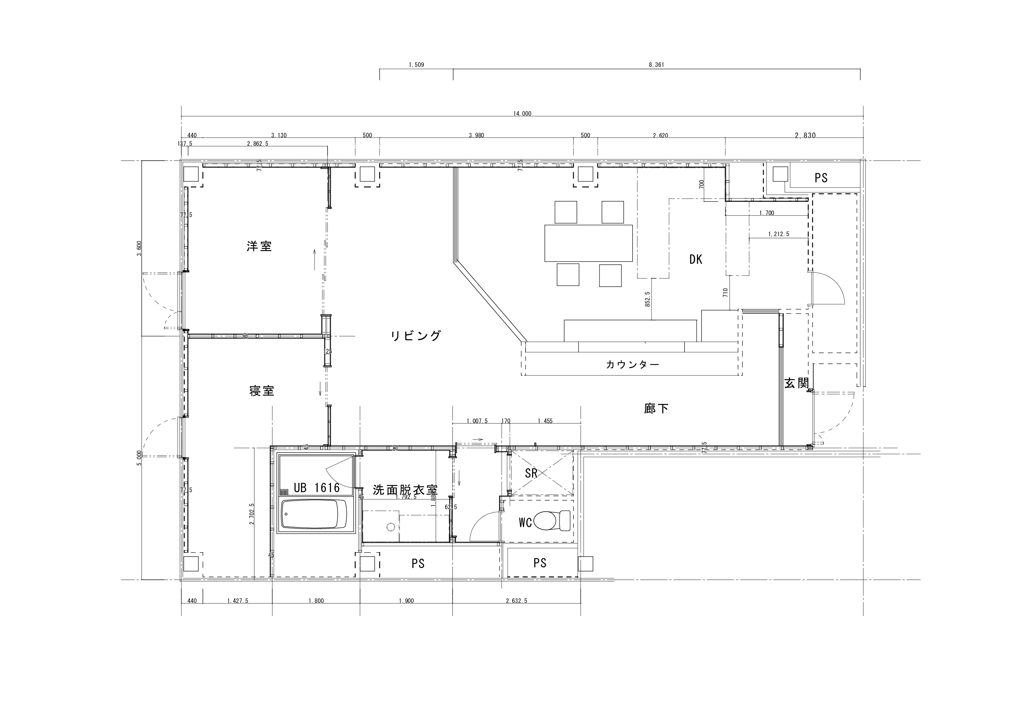
■既存の店舗を居住空間に全面リノベーション店舗の間取りを活かしつつ、生活動線を一新。水まわりや寝室を新設し、広々としたLDKへ。
■小上がりを設けたリビング
段差をつけることで空間にメリハリが生まれ、腰掛けにも活用できます。
■カウンターと室内窓で“つながる”デザイン
店舗時代のカウンターを残し、リビングとキッチンの間に室内窓を設置。
光と風を通しながら、家族の気配を感じられる空間に。
■快適性を高める設備リフォーム
給排水工事・キッチン入れ替え・シャワールームの新設など、
日常の使いやすさと将来の暮らしを見据えた設計です。
間取り
使用した材料
キッチン TOTO ザ・クラッソ
使用した材料
キャビネット TOTOクラッソ
間仕切り窓 パナソニック
使用した材料
TOTO ザ・クラッソ
使用した材料
TOTOエスクア
使用した材料
TOTOピュアレストEX
使用した材料
TOTOサザナ1616
使用した材料
TOTOシャワールーム
リノベーション現場レポート
-
2024年10月18日
丸亀市 M様邸リノベーション工事(1)
店舗だった建物を住居にする工事です。まずは排水など確認しています。
-
2024年10月21日
丸亀市 M様邸リノベーション工事(2)
厨房だったところには水が溜まったいた為吸い出してきれいにしています。
-
2024年10月24日
丸亀市 M様邸リノベーション工事(3)
キッチンの配管立ち上げました。
-
2024年10月25日
丸亀市 M様邸リノベーション工事(4)
もともとあったトイレ付近の給排水の確認をしています。この付近にトイレ、洗面など水廻りを設置する予定です。
-
2024年10月28日
丸亀市 M様邸リノベーション工事(5)
左官屋さんが土間打ちをしています。フロアタイルを張るため、下地をきれいにしています。
-
2024年10月30日
丸亀市 M様邸リノベーション工事(6)
壁下地をしています。
-
2024年11月05日
丸亀市 M様邸リノベーション工事(7)
天井下地、間仕切り壁下地もしていきます。部屋が区切られてわかりやすくなりました。
-
2024年11月12日
丸亀市 M様邸リノベーション工事(8)
床組は置床工法です。
-
2024年11月12日
丸亀市 M様邸リノベーション工事(9)
シャワールームを組み立てています。
-
2024年11月13日
丸亀市 M様邸リノベーション工事(10)
シャワールーム完成していました。ベンチ付きのタイプです。
-
2024年11月15日
丸亀市 M様邸リノベーション工事(11)
お風呂も設置されていました。TOTOサザナ
-
2024年11月21日
丸亀市 M様邸リノベーション工事(12)
天井ボードを貼っています。
-
2024年11月25日
丸亀市 M様邸リノベーション工事(13)
リビング、洋室部分の床を貼っています。三協アルミSフロア
-
2024年11月28日
丸亀市 M様邸リノベーション工事(14)
ボード張りが進んでいます。
-
2024年12月03日
丸亀市 M様邸リノベーション工事(15)
キッチン収納カウンターと廊下の間には室内窓を設置します。
-
2024年12月04日
丸亀市 M様邸リノベーション工事(16)
玄関横に外から荷物が入れれるようにドアを設置しました。ドアの向こうは室内からも入れる収納庫になっているので買ってきたものをそのまま収納できます。
-
2024年12月05日
丸亀市 M様邸リノベーション工事(17)
重たい鉄扉を明るくなるようにガラスドアに交換しました。
-
2024年12月12日
丸亀市 M様邸リノベーション工事(18)
クロス工事に入っています。キッチン施工前に配管工事も終わらせました。
-
2024年12月13日
丸亀市 M様邸リノベーション工事(19)
今日はキッチン施工日です。キャビネットの数が多くて運ぶのが大変そうでした。
-
2024年12月15日
丸亀市 M様邸リノベーション工事(20)
キッチン施工終わりました。TOTOクラッソL型キッチンに対面家電収納カウンター、キッチン横には2700のカウンターも設置しています。お料理が楽しくなりそうな広々キッチンです。
-
2024年12月18日
丸亀市 M様邸リノベーション工事(21)
クロス工事も終わりました。トイレは落ち着いた色のクロスを選ばれています✨トイレも設置完了です。
-
2024年12月19日
丸亀市 M様邸リノベーション工事(22)
照明器具を取り付けています。
-
2024年12月19日
丸亀市 M様邸リノベーション工事(23)
室内窓を取り付けています。だんだんと終わりが見えてきました。
-
2024年12月20日
丸亀市 M様邸リノベーション工事(24)
美装も終わり全貌が見えました。もともと厨房があったところは配管の関係で1段上がっていたのでそのまま使用。ダイニングとリビングでちょっとしたスキップフロアになりました。
-
2024年12月23日
丸亀市 M様邸リノベーション工事(25)
ベランダへ出るドアには網戸を取り付けました。
-
2024年12月23日
丸亀市 M様邸リノベーション工事(26)
洗面化粧台はTOTOのエスクアLSです。カウンターが広くて使い勝手良さそうですね。
-
2024年12月24日
丸亀市 M様邸リノベーション工事(27)
玄関には靴箱を設けず、オープンな可動棚を取り付けました。
-
2024年12月26日
丸亀市 M様邸リノベーション工事(28)
廊下カウンター上の室内窓からLDKの様子がわかり空間に広がりがでますね。
-
2024年12月26日
丸亀市 M様邸リノベーション工事(29)
L型キッチンに収納カウンター付きでキッチン周りはすっきり片づけられますね。お料理時間も楽しみになります☆
-
2024年12月26日
丸亀市 M様邸リノベーション工事(30)

















